
Bridge General Arrangement Drawing with Plan View , Elevation , Sections and Setting-out table.

Highway Bridge Abutment Reinforcement Details Shop Drawing

Highway Bridge Pier Reinforcement Details Shop Drawing

Bridge Deck Reinforcement Details Shop Drawing

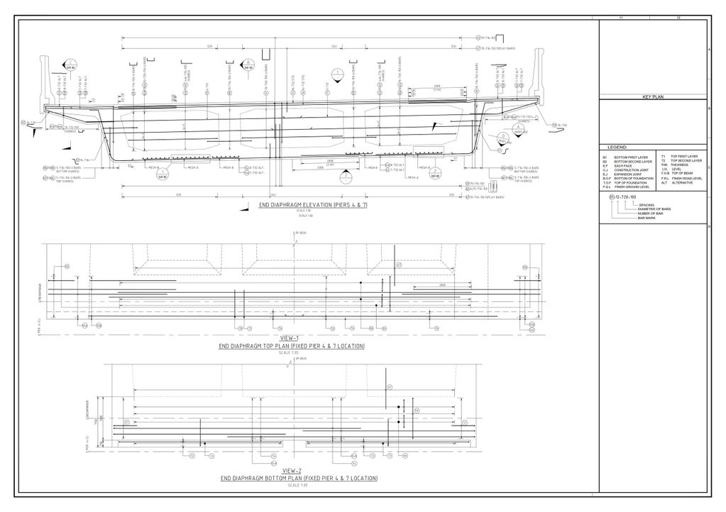
Bridge Deck End Diaphragm Reinforcement Details

Reinforced Concrete Retaining Wall Segment with Plan , Elevation , Sections and Bar Bending Schedule

Reinforced Concrete Box Culvert
(7.00 x 3.00 mt ) reinforcement details with BBS

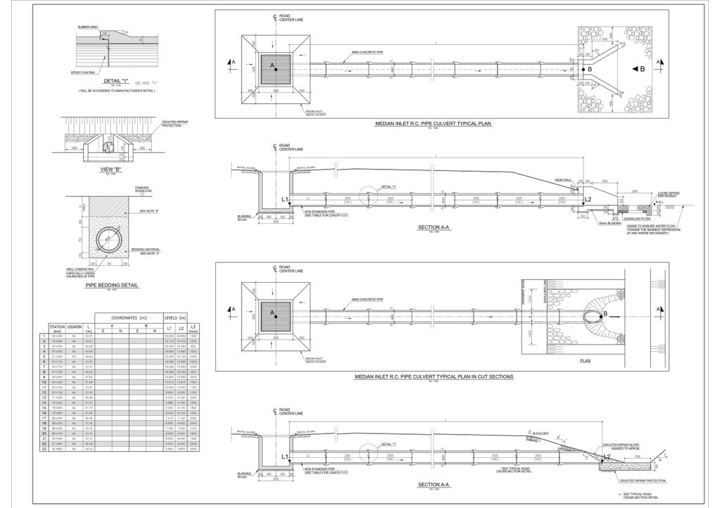
Reinforced Concrete Pipe Culvert General Arrangement Shop Drawing

Braiding Structure Walls Reinforcement Details Shop Drawing

Reinforcement Details shop drawing Precast Parapet on MSE wall with corbel for Lighting Pole
Copyright © 2024 Kaya Engineering and Drafting Services - All Rights Reserved.
Powered by GoDaddy Website Builder