
Stormwater Drainage Layout Shop Drawing

Valve Chamber Reinforcement Details

Valve Chamber Reinforcement Details - Bar Bending Schedule

Water Treatment Structure
Reinforcement Details

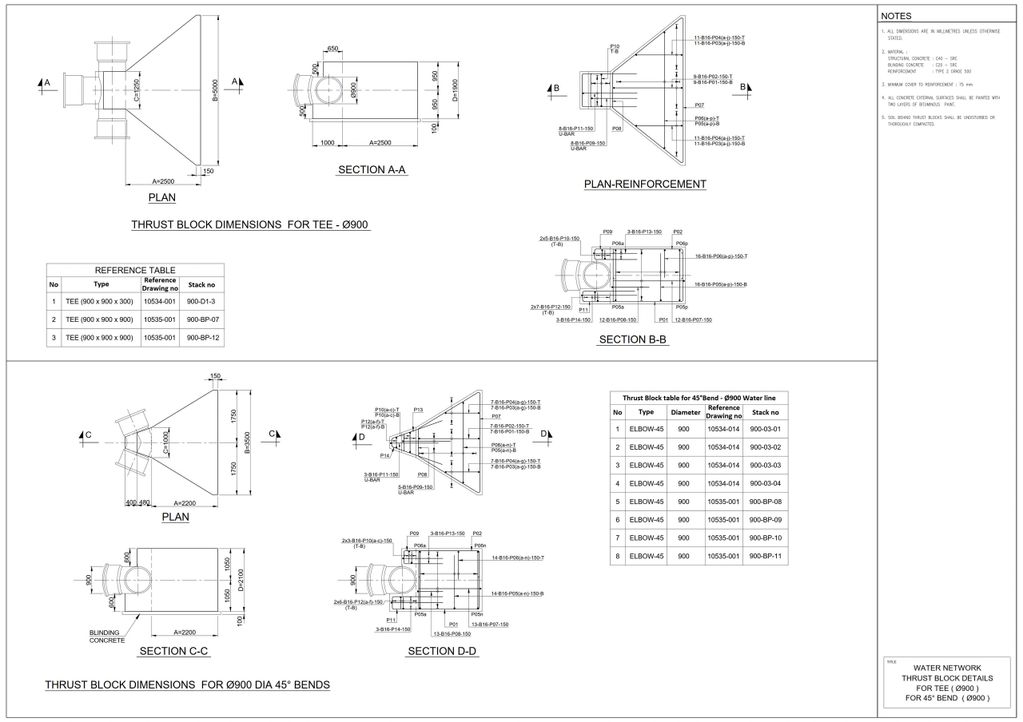
Pipeline Thrust Blocks Reinforcement Details
Copyright © 2024 Kaya Engineering and Drafting Services - All Rights Reserved.
Powered by GoDaddy Website Builder